Ihr Urlaub auf der Seeperle
FERIENWOHNUNG IM PFAHLHAUS AUF DER HARLE
Die Ferienwohnung Seeperle ist wohl einmalig in der Region. Das Haus befindet sich auf Pfählen im Hafen der Harle und ist von einem Privatweg als auch über das Wasser zu erreichen. Erleben Sie den besonderen Charme in einer außergewöhnlichen Lage und genießen Sie den maritimen Flair mit Blick in den Yachthafen.
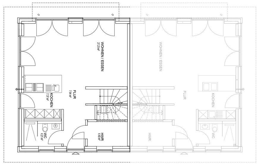
Erdgeschoss
Die Ausstattung ist modern und gemütlich mit einem offenen Wohn-/Ess- und Kochbereich gestaltet und bietet auf 98 qm Platz für 2 bis 6 Personen. Im Erdgeschoss befindet sich zudem ein Hauswirtschaftsraum und ein Gäste-WC.
Grundriss Erdgeschoss
ButtonCity skyline
Grundriss Unten
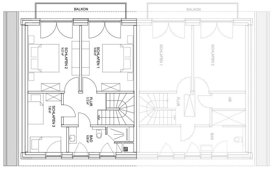
ButtonObergeschoss
Im Obergeschoss der Doppelhaushälfte befinden sich je zwei sehr geschmackvoll eingerichtete Schlafzimmer mit direktem Zugang zum Balkon. Das dritte Schlafzimmer verfügt über zwei Einzelbetten. Das großzügige Badezimmer vervollständigt diese schöne Unterkunft.




























